Alternativa | 07 Abril, 2010 06:00
Al ple de gener es van aprovar les inversions a sol·licitar en el Fons estatal i per a l’Ocupació i la Sostenibilitat Local . (9 vots a favor: UM-UNPI i PSOE i 8 abstencions: PP-UMP, PSM-EN i Alternativa EU-EV),
A la nostre argumentació vam criticar el procediment per triar les inversions, si al primer Fons al manco va haver una reunió de tots els partits i es va cercar el consens, a aquest Fons no s’ha contat pràcticament res amb els partits de l’oposició i ni tan sols s’ha fet una reunió específica sobre el tema.
L'equip de govern no ha volgut fer una autèntic procés participatiu per triar els projectes tal com era la nostra proposta i com s'ha fet a Esporles. A pesar d’haver aprovat al ple de desembre per unanimitat la nostra moció per fer partícips d’aquest fons a la ciutadania. El forum que es va crear no tenia publicitat ni explicació del que era. només hi trobaves l'acord de plenari i enllaços al BOIB. La veritat que era molt complicat aconseguir la participació dels ciutadans amb tan poques explicacions i sense difusió de cap tipus. A Esporles l’Ajuntament va convocar als ciutadans i van acudir prop de mig centenar per escoltar les propostes de l’Ajuntament ( la majoria sortien de l’Agenda Local 21 que a Pollença està totalment morta) i van poder fer les seves propostes per passar a continuació a votar. Veure anterior article sobre el tema.
Passant a parlar de les inversions, 1,837.501 euros, evidentment hi ha un munt de possibles projectes vàlids i necessaris ja que el nostre estimat poble sofreix un abandonament, tan i tan gros que un no sap per a on començar.
* Projecte d’inversió: “Rehabilitació i millora de les infraestructures d’aigües potable i evacuació d’aigües fecals dels carrers Metge Llopis i Almirant Cervera del Port de Pollença”
- Import amb IVA: 280.000 € - Import sense IVA: 241.379,31 €
* Projecte d’inversió: “Rehabilitació i millora de les infraestructures d’evacuació d’aigües fecals, subministrament d’aigües potables i aigües regenerades per a reg de la zona poliesportiva de Pollença”
- Import amb IVA: 150.000 € - Import sense IVA: 129.310,35 €
* Projecte d’inversió: “Instal·lació de plaques solars fotovoltaiques connectades a xarxa de subministrament elèctric a la coberta d’una nau industrial destinada a magatzem municipal situat al Polígon Industrial de Pollença”
- Import amb IVA: 120.000 € - Import sense IVA: 103.448,27 €
* Projecte d’inversió: “Instal·lació de plaques solars tèrmiques pel recolzament en l’obtenció d’ACS a la piscina municipal del Port de Pollença, al camp de futbol del Port de Pollença i al Poliesportiu municipal de Pollença”
- Import amb IVA: 230.000 € - Import sense IVA: 198.275,86 €
- Redacció del projecte d’instal·lació i direcció:
- Import amb IVA: 20.000 € - Import sense IVA: 17.241,37 €
En aquest punt volem recordar que a diversos plens haviem denunciat que un dels grans errors de la piscina coberta era no haver apostat per l'enegia solar que podia suposar un estalvi entre el 40 i el 70% del combustible, i que s’havia comet un error important al col·locar la teulada orientada cap al Nord, cosa que dificulta la instal·lació de plaques solars. A aquest plens el batle va dir que no era possible instal·lar plaques solars... Bé el temps demostra que això no era veritat i que una vegada més es demostra el que diu el proverbi S'atrapa abans a un mentider que a un coix.
* Projecte d’inversió: “Adaptació i eliminació de barreres arquitectòniques de l’accés i d’uns serveis higiènics (banys) del Centre Educatiu “Port de Pollença” situat al Port de Pollença”
- Import amb IVA: 70.000 € - Import sense IVA: 60.344,83 €
Amb el tema de l'eliminació de les barreres arquitectòniques també consideram insuficient la construcció només d'una rampa al Col·legi públic Port de Pollença. Hem de recordar que l'Ajuntament va aprovar per unanimitat al ple d'octubre del 2007 una moció per fer un pla bàsic d'accessibilitat i supressió de barreres d'arquitectòniques i que encara no complim la llei per això reiteram la nsotra petició de l'eliminació de les barreres arquitectòniques de tots els espais lliures d'ús públic i els edificis d'accés públic.
* Projecte d’inversió: “Adquisició de Hardware i Software per a la digitalització de documentació per a l’Ajuntament de Pollença”
- Import amb IVA: 20.000 € - Import sense IVA: 17.241,37 €
* Projecte d’inversió: “Soterrament de contenidors de la Cala Sant Vicenç”
- Import amb IVA: 100.000 € - Import sense IVA: 86.206,90 €
Per la nostra part el 8 de gener vam presentar les nostres propostes on demanavam tenir en compte els deutes històrics del municipi amb el nucli de la Cala Sant Vicenç i amb la eliminació de les barreres arquitectòniques. Al cas de la Cala consideram totalment insuficient la inversió. La Cala Sant Vicenç es troba molt abandonat, a pesar de ser un dels grans actius turístics del municipi. Haurien de reflexionar sobre els motius de la dimissió del president de l'Associació de Veïns de la Cala que ha manifestat que havia trobat a faltar el suport institucional i es va queixar del seu desinterès. Crec que és prou significatiu que en aquest moment no hi hagi ningú que vulgui assumir la presidència. Els demanam que tinguin en compte les nombroses peticions que els van fer l'Associació de Veïns de la Cala i que s'augmenti la inversió destinada a la Cala.
* Projecte d’inversió: “Adquisició de mobiliari pel Claustre de Santo Domingo (centre cultural i social) de Pollença”
- Import amb IVA: 47.501 € - Import sense IVA: 40.946, 14 €
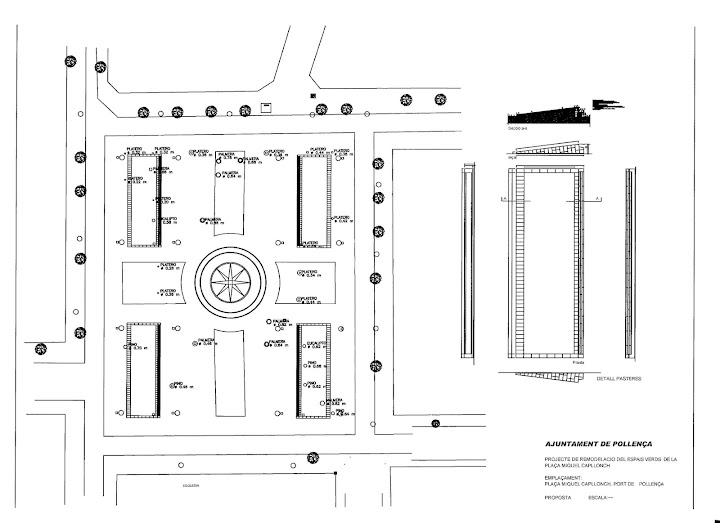
* Projecte d’inversió: “Renovació de diferents instal·lacions i infraestructures de la Plaça Miquel Capllonch del Port de Pollença per a una millor gestió energètica i dels recursos hídrics necessaris”
- Import amb IVA: 400.000 € - Import sense IVA: 344.827,58 €
La inversió de 400.000 euros a la plaça Miquel Capllonch és discutible, Compartim la necessitat de canviar el seu enllumenat però el que seria el projecte d'embelliment que bàsicament suposa llevar parterrer de la plaça pensam que no és imprescindible i no ens han convençut els arguments que ens han donat. Si el problema és que els nins no respecten els parterrers i entren als jardins tal vegada el que cal és fer un parc infantil i un lloc per que puguin jugar els nins, un tema en el que el port és clarament deficitari.
* Projecte d’inversió: “Construcció i adequació de la planta pis de l’edifici municipal del carrer Sant Domingo per a l’Àrea de Serveis Socials Municipals de Pollença”
- Import amb IVA: 375.000 € - Import sense IVA: 323.275,86 €
- Redacció del projecte i direcció de l’obra:
- Import amb IVA: 25.000 € - Import sense IVA: 21.551,72 €
Respecte a la inversió de 400.000 al primer pis del Centre de Dia ni tan sols ens han mostrat cap projecte i aquesta ens sembla una quantitat molt important que requeriria una major explicació per la seva part.
Remodelació de la plaça Miquel Capllonch


Hans | 07/04/2010, 12:39
Arquitectos y técnicos han hecho posible la famosa S del enlace de Crestax - Autopista. Basta ver los cristales y repuestos de coches en el suelo para pensar que algunos Arquitectos toman drogas duras.
Garci | 07/04/2010, 10:13
Jo record un programa de ràdio amb en Toni Oliver explicant els inconvenients i la impossibilitat de posar plaques degut a la orientació de la teulada, que no s'havia pogut orientar "com tocava" per culpa dels vents d'aquella zona. Ell va dir que "per posar plaques i que només donin una part de l'energia necessària, no importa posar-ne".
Com canvien les coses.
Miquel Sánchez | 07/04/2010, 10:07
I pensar que a en Pepe el varen tractar quasi de loco per voler posar plaques solars a la piscina
JRV | 07/04/2010, 09:34
Als projectes presentats als fons per a la Ocupació i la Sostenibilitat local, trobo a faltar una també historica mancança de Pollença; Infraestructura per als serveis tècnics(brigada, electrecistes, mgatzem, Emser, etc) de l'Ajuntament, històricament amb precari, sense faltar a la veritat, pitjors que de l'edat de pedra. A l'inici de la present legislatura, el batle convoca amb molta solemnitat una reunió amb els representants dels treballadors, afirmant que tindría en compte la seva opinió quan es fessin les instal·lacions avinents reclamades per necessaries. Veig que uina vegada mes, que s'han oblidat, sent així que aquesta situació repercuteix en el servei que és dona al ciutadans ,negativament, i seguirà així.
I veig que la questió de les plaques solars damunt la piscina municipal, el sentit comú ús ha donat la raó una vegada mes, com no podia ser d'una altra forma. Però aqui també hi ha la culpa del tècnic o tècnics que varen dissenyar la piscina coberta. La relació de técnics incompetents que és possen a les ordres de politics ignorants ja és molts llarga. El trist és que molt sovint s'arraconen técnics de molta valua professional per contractar vertaders inèptes, però dòcils a l'amo. Es repeteix massa sovint situacions com la del metro de Palma, la enginyera del qual era(és) una vertadera incompetent, el Palma Arena, i tants d'altres. Al final, tots hi perdem, excepte l'inepte de torn.
Miquel Sánchez | 07/04/2010, 07:13
Aquí comencem el gran debat la plaça del Moll "Macroterrassa" o un lloc per conviure i està en familia.
alternativaperpollenca@gmail.com
Aquest blog és plural i lliure. Les opinions dels comentaris reflecteixen només el parer de l'autor del mateix i des del blog URXELLA no ens fem responsables del seu contingut.
CAP OBJECTIU ÉS MASSA PETIT,CAP VICTÒRIA MASSA INSIGNIFICANT. Arundhati Roy
Pla de Futura Gestió: Programa Electoral 2015-2019
| « | Març 2026 | » | ||||
|---|---|---|---|---|---|---|
| Dl | Dm | Dc | Dj | Dv | Ds | Dg |
| 1 | ||||||
| 2 | 3 | 4 | 5 | 6 | 7 | 8 |
| 9 | 10 | 11 | 12 | 13 | 14 | 15 |
| 16 | 17 | 18 | 19 | 20 | 21 | 22 |
| 23 | 24 | 25 | 26 | 27 | 28 | 29 |
| 30 | 31 | |||||
Tècnics polititzats
JRV | 07/04/2010, 18:23
Podeu veura a la mateixa rotonda de Sa Pobla, i a molts indrets, que s'ha instal·lat reg per goteig per fer que l'herba surti i donar un especte mediambientalment acceptable de les autopistes, i al mateix temps es pulveritza aquesta herba, quan surt, amb productes quimics per matar l'herba que ha sortit. Es demencial. Quin deu ser el pagés postís mal reciclat que ha donat aquestes instruccions? També un "tècnic"?
Però això de matar l'herba amb productes quimics ben costossos, es una malaltia mental molt mallorquina. Moltes vegades, després, es substituida amb sembres de xespa ben costossa...i que sovint no arrela perque el subsol està impregnat dels productes químics
Jo he viscut a Alemanya bastants anys i mai he vist matar l'herba, i això quen'hi ha molta mes que aqui, com pertot a l'Europa i l'Espanya humida. Es sega i és procura que no mori, com a molts indrets a Europa.